资讯中心

当前位置:首页>资讯中心

罗丘赛兹:一个由鹅卵石雕刻而成的俄罗斯酒庄

发布时间:2020/12/31

俄罗斯是酒类消费大国,该国以消费伏特加等烈酒和啤酒、葡萄酒为主。目前俄罗斯主要产区集中在俄罗斯联邦南部地区,包括周围地区达吉斯坦,车臣,卡巴尔达-巴尔卡尔,克拉斯诺达尔边区,罗斯托夫,和斯塔夫罗波尔边疆区。俄罗斯葡萄酒生产量约为5500万升,葡萄酒年进口量约为2800万升。近些年来俄罗斯葡萄酒行业发展初见成效,产品质量得到改进,特别是产品在包装样式和包装材料方面进步明显。

罗丘赛兹:一个由鹅卵石雕刻而成的俄罗斯酒庄


俄罗斯的北高加索地区,是俄罗斯的大多数葡萄园所在地,那里是典型的大陆地区。为了对付严冬,很多葡萄种植者采用埋土的办法保护葡萄藤避免霜冻。在该地区的克拉斯诺达尔有193-233天的无霜期。达吉斯坦产区有不同的气候,有一些地区半沙漠土壤。约有13%的俄罗斯葡萄酒是在斯塔夫罗波尔产区生产的,那里有180-190无霜期。今天蓝裕文化酒庄规划设计院为大家带来的就是克拉斯诺达尔地区的一个别具风格的新酒庄。


坐落在俄罗斯南部卡拉斯诺达尔地区风景如画的山丘上的一家新酒厂,名为罗丘赛兹(Cote Rocheuse),占地32公顷,是一个美丽的、以品质为中心的葡萄园,就在黑海沿岸,距离阿纳帕不远。

罗丘赛兹:一个由鹅卵石雕刻而成的俄罗斯酒庄


在Cote Rocheuse的葡萄酒生产是基于重力酿酒的原则,这推动了酒厂的建筑规划。酒厂的表达形式是基于严格的功能方案。建筑的主要功能是葡萄酒生产,酒窖部分位于地面上,品尝室和餐厅。

罗丘赛兹:一个由鹅卵石雕刻而成的俄罗斯酒庄


罗丘赛兹:一个由鹅卵石雕刻而成的俄罗斯酒庄


建筑师的工作成就了一个设计引人注目的现代酒庄。建筑成为一个新的葡萄酒品牌的重要组成部分。

罗丘赛兹:一个由鹅卵石雕刻而成的俄罗斯酒庄


罗丘赛兹:一个由鹅卵石雕刻而成的俄罗斯酒庄


设计理念基于对景观和海洋的自由幻想,在第一眼就赢得了客户的青睐。对酒庄综合体的感知是由“矩形vs仿生”或“技术官僚vs自然”的对立所决定的。

罗丘赛兹:一个由鹅卵石雕刻而成的俄罗斯酒庄


罗丘赛兹:一个由鹅卵石雕刻而成的俄罗斯酒庄


建筑师将整个技术封闭在一个简单的矩形体块中,它需要一个显著的高度,与地基的斜坡融为一体。


重力酿酒不需要使用机械手段来泵出葡萄,因此,酒窖的容器是通过重力来填充的——所以生产空间应该是在不同的层次上。由于“不均匀性”,葡萄汁在重力的作用下从第一个罐流到地窖里的罐中。

罗丘赛兹:一个由鹅卵石雕刻而成的俄罗斯酒庄


上部体积的圆形轮廓类似于当地海岸典型的海滩卵石。较低的体量包含了葡萄酒生产的全部技术,而上部的“胶囊”集中在公共区域——餐厅、咖啡馆和全景露台位于这里。想要一睹壮观景色的人也可以到屋顶上去。

罗丘赛兹:一个由鹅卵石雕刻而成的俄罗斯酒庄


罗丘赛兹:一个由鹅卵石雕刻而成的俄罗斯酒庄


主体量的正交立面结合了固体混凝土面板和大型半透明彩色玻璃窗,而“鹅卵石”体量完全由建筑混凝土创建。


上部体量位于主建筑的玻璃部分上方,通过一个小控制台轻微地移动出现在主立面上。一个带有咖啡馆的全景平台在这里被组织起来。

罗丘赛兹:一个由鹅卵石雕刻而成的俄罗斯酒庄


罗丘赛兹:一个由鹅卵石雕刻而成的俄罗斯酒庄


从不同的角度来看,该建筑看起来完全不同,它也是为鸟瞰而设计的,因为附近安装了直升机停机坪。


它的感知强烈地取决于一天的时间:根据光线,混凝土外壳看起来几乎是雪白的或深灰色——就像鹅卵石,石头接触水或太阳会改变颜色。

罗丘赛兹:一个由鹅卵石雕刻而成的俄罗斯酒庄


罗丘赛兹:一个由鹅卵石雕刻而成的俄罗斯酒庄


区位图

罗丘赛兹:一个由鹅卵石雕刻而成的俄罗斯酒庄


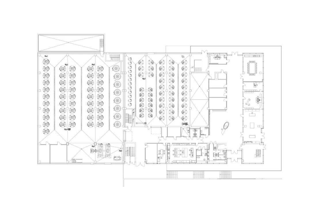
首层平面图

罗丘赛兹:一个由鹅卵石雕刻而成的俄罗斯酒庄


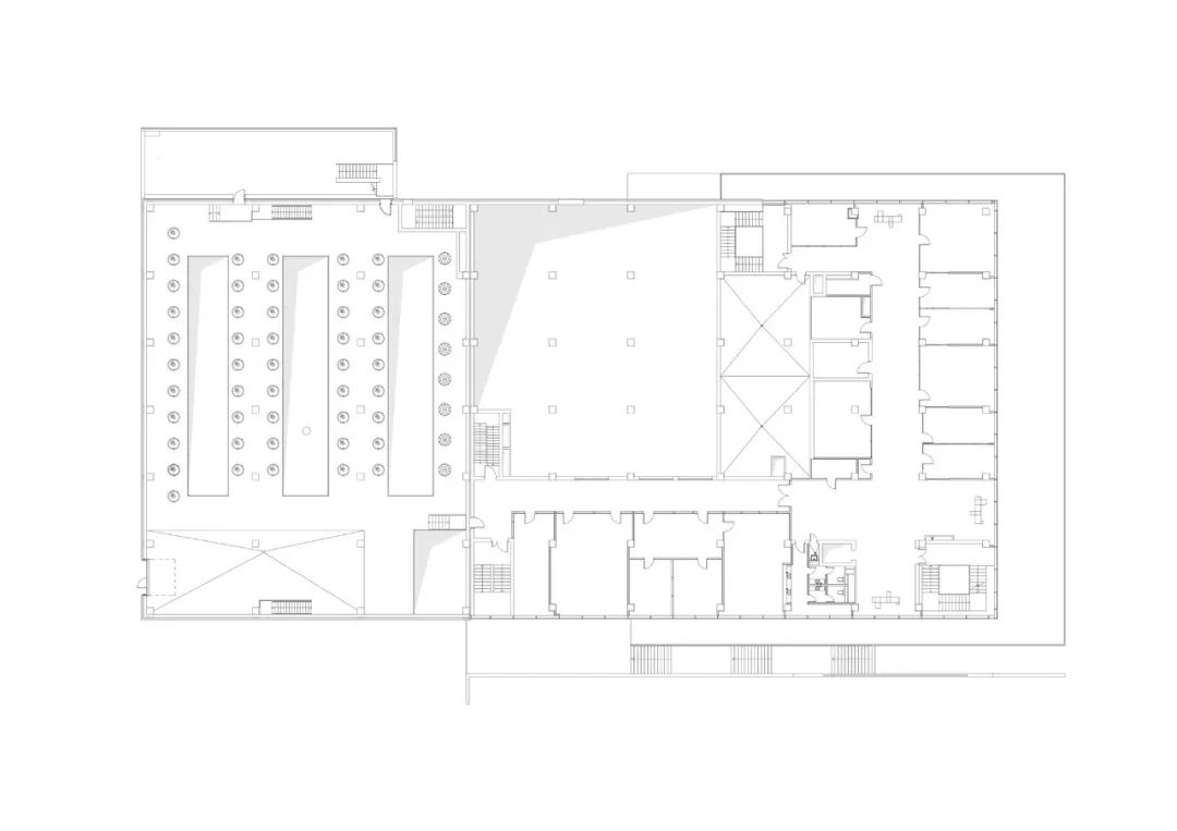
2层平面图

罗丘赛兹:一个由鹅卵石雕刻而成的俄罗斯酒庄


3层平面图

罗丘赛兹:一个由鹅卵石雕刻而成的俄罗斯酒庄


立面图

罗丘赛兹:一个由鹅卵石雕刻而成的俄罗斯酒庄


罗丘赛兹:一个由鹅卵石雕刻而成的俄罗斯酒庄


罗丘赛兹:一个由鹅卵石雕刻而成的俄罗斯酒庄


罗丘赛兹:一个由鹅卵石雕刻而成的俄罗斯酒庄


剖面图

罗丘赛兹:一个由鹅卵石雕刻而成的俄罗斯酒庄


罗丘赛兹:一个由鹅卵石雕刻而成的俄罗斯酒庄


轴测图

罗丘赛兹:一个由鹅卵石雕刻而成的俄罗斯酒庄


罗丘赛兹:一个由鹅卵石雕刻而成的俄罗斯酒庄


酒庄建筑从最初的满足生产功能到后来的满足庄主喜好和当时建筑风格逐渐过渡到满足使用对象的喜好上来。蓝裕文化酒庄规划设计院认为建筑是时代的产物,也是喜好的产物,只是针对对象的不同,才呈现出建筑的千姿百态。酒庄无疑是走在以游带售前沿的一个行当,她的建筑通常也以打卡为主,具备网红气质,或者极度经典,能给人一种过目难忘的感觉,从而成为酒庄的门面,帮助葡萄酒树立品牌,促进销售。相信看完蓝裕文化推荐的众多酒庄,您一定会很快认识到这一点。

本站底部导航: 关于我们 工业旅游新闻 酒庄设计新闻 主题乐园新闻 工业旅游设计案例 酒庄设计案例 主题乐园设计案例 联系我们 网站地图

Blueyu CultureBlueyu CultureBlueyu CultureBlueyu CultureBlueyu CultureBlueyu Culture 友情链接: 京ICP备16050824号 工业旅游、白酒酒庄、主题乐园 ©2016-2023 蓝裕文化版权所有