资讯中心

当前位置:首页>资讯中心

LVMH旗下澳大利亚襄桐酒庄换新颜了

发布时间:2020/11/02

襄桐酒庄(Domaine Chandon Australia)是酩悦香槟集团(Champagne Moet & Chandon)在澳大利亚投资建立的酒庄,它位于澳大利亚维多利亚州(Victoria)的雅拉谷(Yarra Valley)葡萄酒产区,是该产区知名的酒庄之一。

墨尔本郊区精美的美食和葡萄酒休闲旅游庄园很受当地人的喜欢,墨尔本亚拉河谷的襄桐酒庄应该是当之无愧的最受欢迎的墨尔本酒庄之一。

襄桐是建立者的名字,每年有超过20万个来访者,全年每天开放,除了圣诞节和Boxing Day (12月26日)。在1960年代,Moet & Chandon 开始寻找法国以外的能生产世界级的优质红酒区域。在阿根廷,巴西和加利福尼亚成功建立了Chandon 酒庄之后,他们发现了在澳大利亚生产优质红酒的机会。现在的酒庄以前是一个旧的农场,但是这里有凉爽的气候和非常好的土壤,这两样环境因素的完美结合是种植葡萄园的关键条件。

20世纪60年代,酩悦香槟集团开始大范围向法国以外的地区拓展市场,先后在阿根廷、巴西和美国的加州建立了酒庄,并获得取得巨大的成功。随后,集团又把目光投向了澳大利亚,准备在澳大利亚生产优质的起泡酒。

20世纪80年代,澳大利亚的一些葡萄酒专家开始寻找一处适合种植用于酿造香槟的葡萄品种的土地。他们最终,他们在雅拉谷一处名为“绿点”的牧场找到了这一处理想的土地,。这里那里气候凉爽,土壤条件优越。从1986年开始,这片土地便成为襄桐酒庄的葡萄园所在地。除了这片葡萄园,襄桐酒庄还在史庄伯吉山区(Strathbogie Ranges)以北150公里处建立了另一座葡萄园,。除此之外,酒庄与维多利亚州和塔斯马尼亚(Tasmania)两地的30多家葡萄种植户建立了长期的合作关系。多样化的地理条件和葡萄来源使得襄桐酒庄酿造的起泡酒结构复杂,口感丰富,成为澳大利亚起泡酒的标杆产品。

20世纪90年代,襄桐酒庄开始小批量地生产静止葡萄酒,主要用于酒庄直销。20多年过去了,酒庄的酿酒团队不断地提高酿造静止葡萄酒的技术,他们精选不同葡萄园出产的优质葡萄,酿造出能够充分反映当地风土和葡萄品种特色的静止葡萄酒。

2019年,襄桐酒庄进行了翻修。设计师的目标是彻底翻修这个地方并且将全新的品牌形象遍布整个酒吧、餐厅、品酒区和零售区。受自由弹出软木塞这一令人兴奋的仪式行为的启发,设计师采用符合21世纪的新潮装饰来呈现酒庄传统。观赏令人惊叹的自然景观是游客体验的起点,前来的游客包括酒庄品牌的忠实拥护者、当地人、食物和美酒追寻者、千禧一代和新鲜事物探索者。空间设计中大胆的色彩运用呈现出四季环境独特的变化。下面就跟蓝裕文化酒庄规划设计院一起去看看吧。

▽酒庄入口处的品酒区:

预算管理要求保留现有的1980年代工业结构——拱型天花板和硬质表面构成的巨大空间。因此设计师必须采用精妙的声学处理,建筑内部通过大胆的设计手法融合在一起。设计师探寻了材料随时间流逝的变化、不同处理过程和相互之间作用所产生的效果,最终研究结果呈现在对不同金属的应用和处理上。同样的,酿酒过程为每个空间设计提供了依据。“压缩/释放“应用在封闭私密的空间如品酒区,酒廊则是流动和充满活力的。透气性编织材料与厚重不透明的材料并置,暗示起泡酒厚重与轻盈的双重性。

▽酒吧区:

一个悬挂在中央长椅区上方可移动的漂浮装置是与当地金属工匠一同合作的设计的。动态、漂浮和微妙的重量,这个悬挂着的动态雕塑轻柔地随着酒吧的韵律摆动,投射出闪亮的金属光泽,趣味性的呈现气泡不可预测的本质。

设计师要处理的关键部分是零售空间,这是设计和布局的核心。设计师与当地玻璃纤维和金属制品制造商密切合作,实现了设计师所希望的展示系统:安装定制的雕刻细木工制品、轻便的底座和框架式用于储藏和展示的高亮度玻璃纤维屏。设计超出了客户的基本要求,创造了一个独特动态的零售体验,如今他们的产品在一个充满创意的环境中进行展示,将零售体验提升到了最高标准。

▽零售区:

这些设计在向Chandon酒庄法式传统致敬的风格也有所体现中,同时设计也保留了一种年轻化的特征,这种年轻风格与香槟酒庄中相对新近成立的酒品种呼应。陈年皮革与天鹅绒搭配黄铜灯具的长条软凳,展露出一种巴黎小酒馆的美感。虽然设计师通常从国际化和能够经历时间考验的角度寻求灵感,他们也致力于与当地材料和制作者一同合作。斑点橡木地板和细木工为昆士兰本地艺术家“Dreamtime“大理石突出的纹理图案和印花纹理增添了柔软和温暖的特征。

▽餐厅区:

▽空间细节:

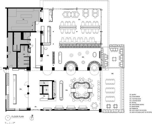
平、立面图:

本站底部导航: 关于我们 工业旅游新闻 酒庄设计新闻 主题乐园新闻 工业旅游设计案例 酒庄设计案例 主题乐园设计案例 联系我们 网站地图

Blueyu CultureBlueyu CultureBlueyu CultureBlueyu CultureBlueyu CultureBlueyu Culture 友情链接: 京ICP备16050824号 工业旅游、白酒酒庄、主题乐园 ©2016-2023 蓝裕文化版权所有